Appartement - Te koop

€ 314.900
Denderstraat 2, 1770 Liedekerke
2 99 m² 1

Omschrijving

Gelijkvloers appartement

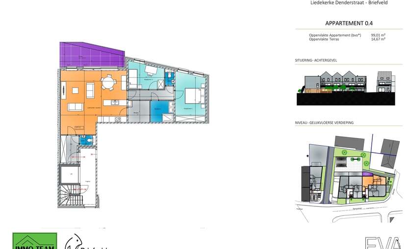
Appartement 0.4 bevindt zich uiterst rechts op het gelijkvloers van het 4-gevel gebouw. Dit appartement beschikt over een inkomhal met toilet, 2 slaapkamers, badkamer met aansluitend 2de toilet, een ruime leefruimte met open keuken en aangrenzende berging. De leefruimte geeft uit op een ruim terras.

Alle info op kantoor. Contacteer ons via info@immoteam.be of 0478/059 069

Lees meer

Financieel

  • Prijs: € 314.900,00
  • Beschikbaarheid: Bij oplevering

Stedenbouw

  • Bestemming: Niet meegedeeld
  • Bouwvergunning: Niet meegedeeld
  • Verkavelingsvergunning: Niet meegedeeld
  • Voorkooprecht: Niet meegedeeld
  • Dagvaarding: Niet meegedeeld

Gebouw

  • Bewoonbare oppervlakte: 99,00 m²
  • Staat: Nieuwbouw project

Indeling

  • Terras: 14,67 m²

Meer info over deze eigendom

Bedankt voor je bericht, we contacteren je zo spoedig mogelijk.
Er was een probleem bij het versturen van het formulier, gelieve opnieuw te proberen.


Jouw woning ook verkopen/verhuren? Contacteer ons