Duplex - Te koop

€ 374.900
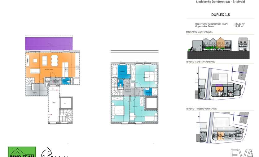
Denderstraat 2, 1770 Liedekerke
3 123 m² 2

Omschrijving

Duplex appartement

Appartement 1.8 bevindt zich op de 1ste en 2de verdieping van het 4-gevel gebouw. Deze duplex beschikt over een inkomhal met toilet, een ruime leefruimte met open keuken en aangrenzende berging. De leefruimte geeft uit op een ruim terras. Op de 2de verdieping is er een nachthal met badkamer, aparte toilet, een douchekamer en 3 slaapkamers. Er is tevens een uittrekbare trap naar de zolderruimte.

Alle info op kantoor. Contacteer ons via info@immoteam.be of 0478/059 069

Lees meer

Financieel

  • Prijs: € 374.900,00
  • Beschikbaarheid: Bij oplevering

Stedenbouw

  • Bestemming: Niet meegedeeld
  • Bouwvergunning: Niet meegedeeld
  • Verkavelingsvergunning: Niet meegedeeld
  • Voorkooprecht: Niet meegedeeld
  • Dagvaarding: Niet meegedeeld

Gebouw

  • Bewoonbare oppervlakte: 123,00 m²
  • Staat: Nieuwbouw project
  • Verdiep: 1

Indeling

  • Terras: 18,89 m²

Meer info over deze eigendom

Bedankt voor je bericht, we contacteren je zo spoedig mogelijk.
Er was een probleem bij het versturen van het formulier, gelieve opnieuw te proberen.


Jouw woning ook verkopen/verhuren? Contacteer ons